
一、君源电力新安高低压柜设备MNS新安低压抽出式开关柜系统介绍:MNS型低压成套开关设备(以下简称为装置)是按照瑞士ABB公司技术制造的产品.本装置适用于交流50-60HZ,额定工作电压660V及以下的系统,用于发电、输电、配电,电能转换和电能消耗设备和控制.本装置除一般陆用外,经过特殊处理后还可用于海上石油钻采平台和核电站中.本装置符合IEC439,VDE0669第五部分和GB725187《低压成套开关设备》国家标准,ZBK3600189《低压抽出式成套开关设备》标准.
新款君源电力新安高低压柜设备MNS抽出式开关柜,摇出式抽屉,省力轻便.增加抽屉抽出位置指示,调试试验位置明确.多点定位导槽,避免卡死.采用一体式操作机构,结构简单.取消闭锁手柄,增加操控面板使用面积.高压力抽屉插接件,避免发热.1/2,1/4抽屉内部空间加大,便于接线.透明垂直母线通道,插接头/母线情况一目了然.
二、君源电力高低压柜设备MNS低压抽出式开关柜产品特点:

三、高低压柜设备MNS低压抽出式开关柜基本参数:

四、MNS低压抽出式开关柜正常使用条件:
1、周围温度不高于+40℃,不低于-15℃,并且24h内其平均温度不高于+35℃.
2、大气条件,空气清洁,相对湿度在高温度为+40℃时不超过50%,在较低温度时允许有较高的相对湿度,例如+20℃时为90%,但应考虑到温度变化,有可能会偶然地产生适度的凝露.
3、海拔高度不超过2000m
4、本装置适应于以下温度的运输和储存过程:-25℃至+55℃的范围之内,在短时间内(不超过24h)可达70℃.在这些温度下装置不应遭到任何不可恢复的损伤,而且在正常条件下应能正常工作.
5、如上述使用条件不能满足时,应由用户和制造厂协商解决.
6、当本装置使用于海上石油钻采平台和核电站时,应另行签订技术协议.
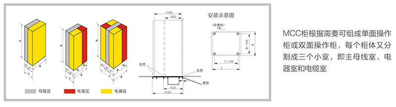
五、君源电力高低压柜设备MNS低压抽出式开关柜柜体的分区设计:

